显示全部楼层
资料分类:给水排水设计
资料格式:DWG DOC
软件支持:CAD2007以上 Word2007以上
发布形式:资料共享
文件内容:计算书+图纸
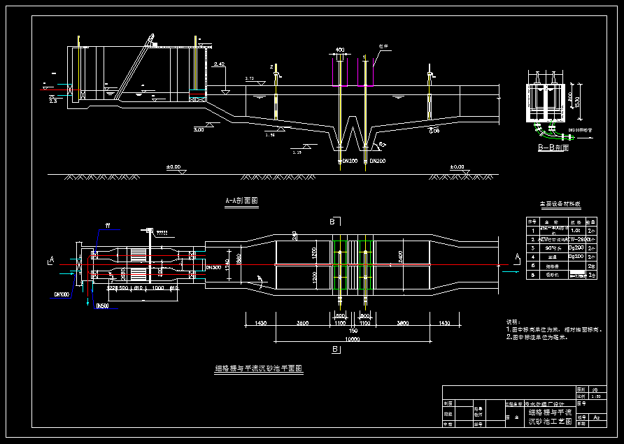
本设计为污水处理厂工程工艺设计,污水处理厂处理规模为近期50000m3/d,远期50000m3/d。污水主要来源为生活污水和工业废水,主要污染物质为BOD、COD、N、P、SS,适宜采用生化处理方法。经过方案比较,确定采用氧化沟工艺。BOD、COD、N、P、SS的去除率分别达到86.7%、75%、37.5%、50%、86.7%,污水处理厂处理后的出水达到《城镇污水处理厂污染物排放标准》(GB18918-2002)中一级B标准。污水经过格栅泵房后进入沉砂池,然后经过氧化沟、二沉池、消毒池后排入河流。污泥经过浓缩池后到贮泥池再经脱水间脱水外运。污水和活性污泥的混合液在氧化沟中进行不断的循环运动,具有良好的去除BOD、COD及脱氮除磷的功能。另外,工艺流程简单,构筑物少,构造形式多样,运行较为灵活,运行稳定性好,基建投资省,运行费用低,操作管理方便,出水水质好也是氧化沟优于其他处理工艺的地方。文件包括计算书、图纸,供参考学习
内容在线展示已结束,下载资料使用学习更方便
[外文文献翻译]喜马拉雅地区水电隧道的稳定性挑战与补救措施综述
[论文参考文献]施工图预算外文文献
[毕业论文格式]毕业设计论文打印及装订要求
[毕业设计任务书]长安大学建筑结构设计设计(论文)任务书
[毕业设计开题报告]土木工程毕业论文开题报告
[建筑结构毕业设计文档]execl内力组合表实例
[论文参考文献]隧道工程参考文献
[AutoCAD专区]AutoCAD 2007视频教程 熟练操作CAD从这里开始
[毕业论文格式]论文结构及撰写格式要求
[外文文献翻译]室内设计中的可持续性
钢筋混凝土楼盖课程设计指导书
分类:课程设计报告
6层框架结构办公楼建筑结构设计(计算书、图纸)[面积6000]
分类:建筑结构毕业设计
阿拉伯胶在路基材料土工特性中的应用
分类:外文文献翻译
5层框架结构教学楼毕业设计(计算书+图纸)[面积2877]
CAD重新安装时,提示已经安装的解决办法
分类:AutoCAD专区
6层办公楼空调系统毕业设计(计算书+图纸)
分类:暖通毕业设计
56
5层框架结构办公楼建筑结构设计(计算书、
跨径25m预应力混凝土简支T形梁桥设计(计算
某6层框架结构办公楼全套施工组织设计-建筑面积5615
E江水利枢纽土石坝设计(计算书、图纸)
某区给水工程规划设计和水厂工艺设计(计算
联系客服获取更多土木工程毕业设计参考资料