6层砖混结构医院宿舍楼结构图纸

结构图纸_6层砖混结构宿舍楼
6层砖混结构宿舍楼

资料分类:结构图纸

资料格式:DWG 

软件支持:CAD2007以上 

发布形式:资料共享

文件内容:

DOC文档文件为doc格式,用WORD打开
DWG图纸文件为dwg格式,用CAD打开

资料介绍

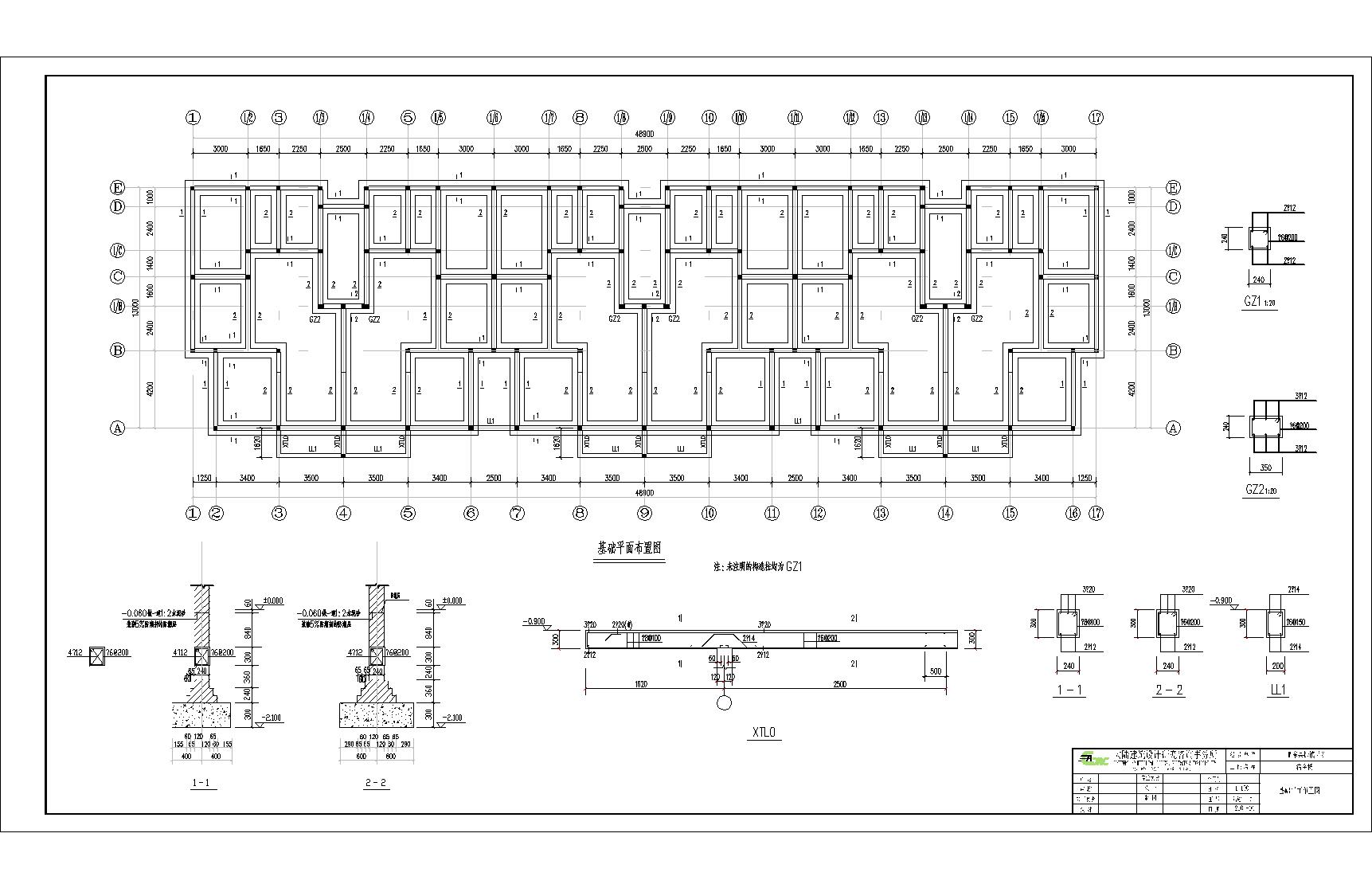
6层砖混结构医院宿舍楼结构图纸包括结构设计总说明、基础平面布置图、2.800~14.000标高层结构平面图、16.800标高层结构平面图、2.800~14.000标高层梁配筋图、16.800标高层梁配筋图、楼梯详图等

58pic_53b182b6b29d0_1_1_9351_1.JPG
58pic_53b182b6b29d0_1_1_9351_5.JPG
58pic_53b182b6b29d0_1_1_9351_4.JPG
58pic_53b182b6b29d0_1_1_9351_3.JPG
58pic_53b182b6b29d0_1_1_9351_2.JPG
58pic_53b182b6b29d0_1_1_9351_7.JPG
58pic_53b182b6b29d0_1_1_9351_6.JPG
展示已经结束,如果需要查看该图纸,请下载本资料


内容在线展示已结束,下载资料使用学习更方便

土木工程设计过程 分享网站网址一起学习

Current Value 9096
Update Date 2016-12-29
Trend Intensity Index

70

*资料为会员分享仅供学习参考,如有侵权请通知删除

热门分类 /

Hot Categories

最新资料 /

Latest Materials
Slideshow