[图纸+清单计价] 4层框架小学教学楼建筑安装装饰工程量清单计价文件(含图纸)

图纸工程量清单计价_4层框架教学楼
4层框架教学楼

资料分类:图纸工程量清单计价

资料格式:DWG XLS 

软件支持:CAD2007以上 Excel2007以上 

发布形式:资料共享

文件内容:

DOC文档文件为doc格式,用WORD打开
DWG图纸文件为dwg格式,用CAD打开

资料介绍

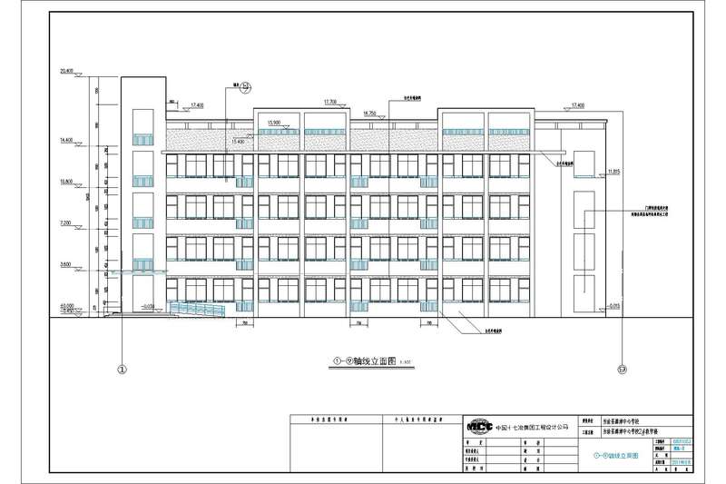
工程名称:中心学校教学楼。本工程位于中心学校区内,通过连廊与教学楼相连,详细位置见总平面图。小学教学楼规教学楼建筑面积:1865.54m2;建筑层数:四层;建筑高度14.85m;结构形式:框架结构。本资料文件包括小学教学楼建筑结构水电施工图纸;建筑工程量清单计价文件;装饰工程量清单计价文件;安装工程量清单计价文件

图纸工程量清单计价-4层框架小学教学楼建筑安装装饰工程量清单计价文件(含图纸)(1)
图纸工程量清单计价-4层框架小学教学楼建筑安装装饰工程量清单计价文件(含图纸)(2)
图纸工程量清单计价-4层框架小学教学楼建筑安装装饰工程量清单计价文件(含图纸)(3)
图纸工程量清单计价-4层框架小学教学楼建筑安装装饰工程量清单计价文件(含图纸)(4)
图纸工程量清单计价-4层框架小学教学楼建筑安装装饰工程量清单计价文件(含图纸)(5)
图纸工程量清单计价-4层框架小学教学楼建筑安装装饰工程量清单计价文件(含图纸)(6)
图纸工程量清单计价-4层框架小学教学楼建筑安装装饰工程量清单计价文件(含图纸)(7)
图纸工程量清单计价-4层框架小学教学楼建筑安装装饰工程量清单计价文件(含图纸)(8)
图纸工程量清单计价-4层框架小学教学楼建筑安装装饰工程量清单计价文件(含图纸)(9)
图纸工程量清单计价-4层框架小学教学楼建筑安装装饰工程量清单计价文件(含图纸)(10)
图纸工程量清单计价-4层框架小学教学楼建筑安装装饰工程量清单计价文件(含图纸)(11)
图纸工程量清单计价-4层框架小学教学楼建筑安装装饰工程量清单计价文件(含图纸)(12)
图纸工程量清单计价-4层框架小学教学楼建筑安装装饰工程量清单计价文件(含图纸)(13)
图纸工程量清单计价-4层框架小学教学楼建筑安装装饰工程量清单计价文件(含图纸)(14)
图纸工程量清单计价-4层框架小学教学楼建筑安装装饰工程量清单计价文件(含图纸)(15)
图纸工程量清单计价-4层框架小学教学楼建筑安装装饰工程量清单计价文件(含图纸)(16)
图纸工程量清单计价-4层框架小学教学楼建筑安装装饰工程量清单计价文件(含图纸)(17)
图纸工程量清单计价-4层框架小学教学楼建筑安装装饰工程量清单计价文件(含图纸)(18)
图纸工程量清单计价-4层框架小学教学楼建筑安装装饰工程量清单计价文件(含图纸)(19)
图纸工程量清单计价-4层框架小学教学楼建筑安装装饰工程量清单计价文件(含图纸)(20)
图纸工程量清单计价-4层框架小学教学楼建筑安装装饰工程量清单计价文件(含图纸)(21)
图纸部分展示已经结束,如需查看该图纸完整内容,请下载本资料
图纸工程量清单计价-4层框架小学教学楼建筑安装装饰工程量清单计价文件(含图纸)(22)

内容在线展示已结束,下载资料使用学习更方便

土木工程设计过程 分享网站网址一起学习

Current Value 10973
Update Date 2017-02-05
Trend Intensity Index

58

*资料为会员分享仅供学习参考,如有侵权请通知删除

热门分类 /

Hot Categories

最新资料 /

Latest Materials
Slideshow